Подвес «Виброфлекс тип 5»
Подвесы «Виброфлекс тип 5» — специализированные элементы для виброизоляции, которые используют при установке инженерного оборудования. Их основная задача — минимизировать передачу вибраций от силовых агрегатов и коммуникационных систем на строительные конструкции здания.
Описание
Особенностью конструкции подвеса, обеспечивающей виброизоляцию, является упругий элемент из специализированного материала Sylodyn. Он специально разработан для эффективного поглощения механических колебаний и снижения передачи вибраций. Упругий полиуретановый эластомер производится всемирно известной компанией Getzner и превосходно зарекомендовал себя в различных эксплуатационных условиях.
Преимущества:
- прочные анодированные металлические элементы — обеспечивают высокую несущую способность и коррозионную стойкость конструкции;
- долгий срок службы — виброакустические характеристики сохраняются на протяжении минимум 50 лет;
- широкий частотный диапазон эффективности — подвес успешно гасит вибрации как на низких, так и на средних и высоких частотах;
- простота и гибкость установки;
- стойкий к различным эксплуатационным условиям эластомер;
- наличие нескольких вариантов типоразмеров с гибкой настройкой под конкретные задачи.
Технические характеристики
Допустимая нагрузка подвесов «Виброфлекс тип 5» варьируется от 65 до 400 кг в зависимости от типа упругого элемента, представленного в трех цветовых вариациях.
Технические характеристики «Виброфлекс тип 5»:
|
Цвет упругого элемента |
бирюзовый |
синий |
фиолетовый |
|
Диапазон рабочей нагрузки, кг |
65–130 |
115–230 |
200–400 |
|
Минимальная резонансная частота, Гц |
10,4 |
10,3 |
10,1 |
|
Осадка при рабочей нагрузке, мм |
2,4 |
2,5 |
2,26 |
Монтаж
Подвес «Виброфлекс тип 5» отличается универсальностью монтажа и может быть установлен двумя способами:
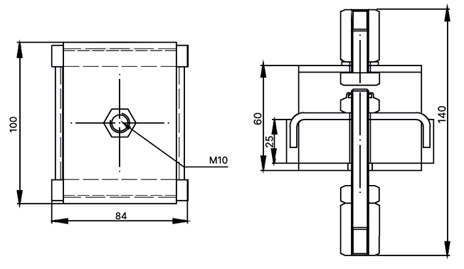
- Интеграция в разрыв резьбового подвеса — встраивается в конструкцию шпилькиподвеса резьбой М10, М12. Такой способ позволяет создать виброизолирующий разрыв в уже существующей подвесной системе, минимизируя передачу колебаний от оборудования к несущим конструкциям.
- Крепление к перекрытию — может быть непосредственно зафиксирован на перекрытии, формируя самостоятельный виброизолирующий узел. Это решение применяется при первичном монтаже звуко‑ и виброизоляционных конструкций.
Гибкость монтажа обеспечивает:
- совместимость с распространенными типоразмерами резьбы;
- возможность интеграции в готовые системы без их полной замены;
- надежную фиксацию как на горизонтальных, так и на вертикальных основаниях.
Универсальность монтажа позволяет применять виброподвес как при реконструкции действующих систем, так и при новом строительстве. «Виброфлекс тип 5» успешно применяется для виброизоляции трубопроводов различного назначения и силовых агрегатов инженерного оборудования, включая системы вентиляции, узлы водоснабжения и канализации, оборудование для отопления, установки кондиционирования.
